|
|
Descriptions:
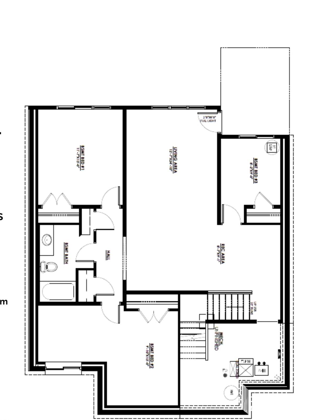
Built by ATTESA Homes, this 1,415 sq. ft. pond backing bungalow in Westwinds, Morinville blends modern style with functional living on a desirable pie-shaped lot. Steps from St. Kateri Tekakwitha Academy, it's ideal for families. The bright, open-concept main floor features a smart layout with generous storage, open concept kitchen & living area, main floor laundry and a second bedroom. The primary suite includes a double-vanity ensuite, free standing tub and walk-in shower for added comfort. A double-attached garage provides ample parking and storage. A fully finished walkout basement expands your living space, offering flexibility for family, guests, or recreation. Quality craftsmanship and a prime location make this a standout choice for stylish, low-maintenance living. Photos and renderings are for illustration purposes to reflect selections only and may not reflect exact final design.
|
|
|
|
|
|
|
|
| Site Influences: |
| Backs Onto Lake, Backs Onto Park/Trees, Playground Nearby, Schools, Shopping Nearby, See Remarks |
|
| Legal Description: |
| ACCESS Legal Description |
|
| Location & Listing Info: |
| Neighbourhood: |
Morinville
|
|
| Lot Shape: |
Pie Shaped |
|
|
|
|
|
| Property Info: |
|
| Property Type: |
Detached Single Family |
| Home Style: |
Bungalow |
| Year Built: |
2025 |
| Total Floor Area: |
1,415 sq. ft. |
| Front Exposure: |
South
|
|
|
|
|
|
| Exterior: |
|
| Exterior: |
Backs Onto Lake, Backs Onto Park/Trees, Playground Nearby, Schools, Shopping Nearby, See Remarks |
| Front Exposure: |
South |
| Roof: |
Asphalt Shingles |
|
|
|
|
|
|
|
|
|
|
| Rooms: |
|
| Total Bedrooms: |
5
(Bedrooms Above: 2)
|
| Bathrooms: |
Full: 2
/ Half: 1
|
| Rooms Above: |
6 |
|
|
|
|
|
| Additional Info: |
|
| Heating: |
Y |
| Basement: |
Full, Finished |
| Basement Type: |
Full, Finished |
| Floor Finish: |
Vinyl Plank |
| Parking: |
Double Garage Attached |
|
|
|
|
|
|
|
|
|
|
|
|
|
|
|
 |
Contact Wayne Quintal -
10018 100 Avenue, Morinville, Alberta, T8R 1P7
|
|
|
|
|
|
|
|
|
|
Copyright 2026 by the REALTORS® Association of Edmonton. All Rights Reserved. Data is deemed reliable but is not guaranteed accurate by the REALTORS® Association of Edmonton. Data was last updated March 9, 2026, 3:00 am. |
|
|
|
|
The data included on this website is deemed to be reliable, but is not guaranteed to be accurate by the REALTORS® Association of Edmonton.
MLS®, Multiple Listing Service®, and the associated logos are all registered certification marks owned by CREA and are used to identify real estate services provided by brokers and salespersons who are members of CREA. The trademarks REALTOR®, REALTORS® and the REALTOR® logo are controlled by The Canadian Real Estate Association (CREA) and identify real estate professionals who are members of CREA. Used under license.
|