|
|
Descriptions:
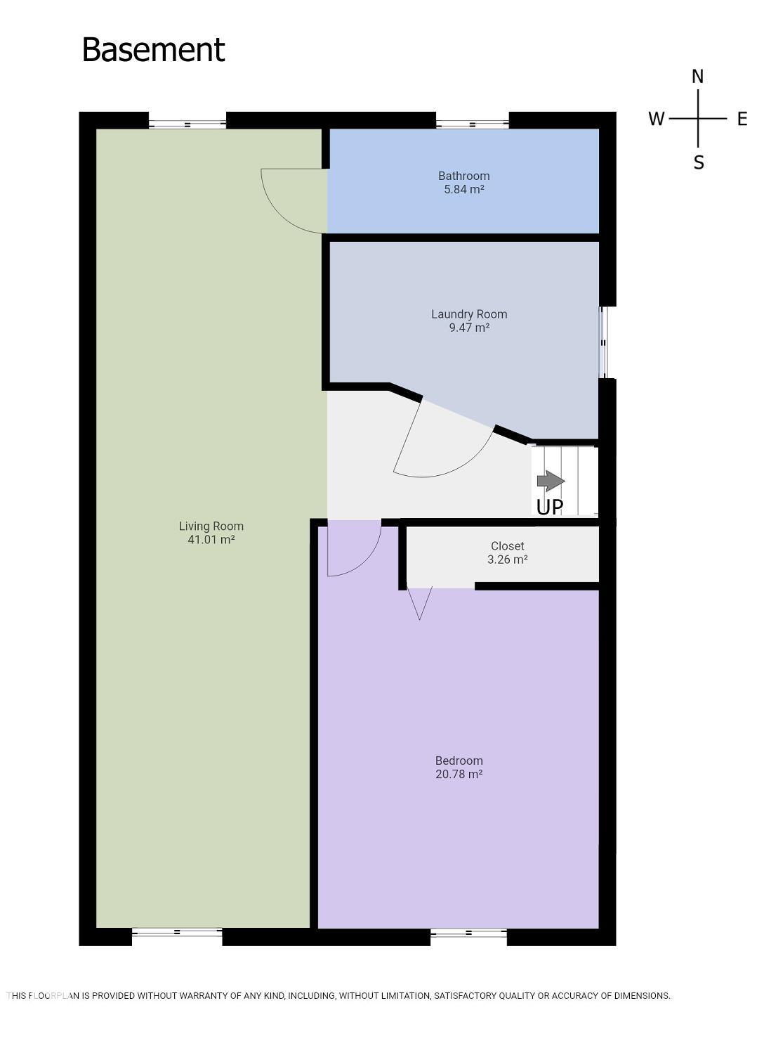
MOVE IN READY! This well-kept BUNGALOW offers over 2000 sq ft of living space! The main floor features a living room with a picture window overlooking the front yard, a large dine-in kitchen, three bedrooms upstairs with a two piece ensuite off the primary bedroom and a four piece bathroom serving the other two bedrooms. Downstairs is a FULLY FINISHED BASEMENT with a SEPARATE ENTRANCE from the backyard, offering a fourth bedroom, large family room, and three piece bath. The HUGE YARD gives room to expand, and backs onto a decommissioned rail line for privacy! Located steps from the Champlain Park community garden and Lion's Park, come see this cozy part of Morinville and make this home your own!
|
|
|
| Includes: |
|
Dishwasher-Built-In, Dryer, Refrigerator, Storage Shed, Stove-Electric, Washer, Window Coverings |
|
|
|
|
|
| Site Influences: |
| Fenced, Flat Site, Schools, Shopping Nearby, See Remarks |
|
| Legal Description: |
| ACCESS Legal Description |
|
| Location & Listing Info: |
| Neighbourhood: |
Morinville
|
|
| Lot Shape: |
Rectangular |
|
|
|
|
|
| Property Info: |
|
| Property Type: |
Detached Single Family |
| Home Style: |
Bungalow |
| Year Built: |
1978 |
| Total Floor Area: |
1,080 sq. ft. |
| Front Exposure: |
West
|
|
|
|
|
|
| Exterior: |
|
| Exterior: |
Fenced, Flat Site, Schools, Shopping Nearby, See Remarks |
| Front Exposure: |
West |
| Roof: |
Asphalt Shingles |
|
|
|
|
|
|
|
|
|
|
| Rooms: |
|
| Total Bedrooms: |
4
(Bedrooms Above: 3)
|
| Bathrooms: |
Full: 2
/ Half: 1
|
| Rooms Above: |
5 |
|
|
|
|
|
| Additional Info: |
|
| Heating: |
Y |
| Basement: |
Full, Finished |
| Basement Type: |
Full, Finished |
| Floor Finish: |
Carpet, Laminate Flooring |
| Parking: |
No Garage, Parking Pad Cement/Paved, See Remarks |
|
|
|
|
|
|
|
|
|
|
|
|
|
|
|
 |
Contact Wayne Quintal -
10018 100 Avenue, Morinville, Alberta, T8R 1P7
|
|
|
|
|
|
|
|
|
|
Copyright 2025 by the REALTORS® Association of Edmonton. All Rights Reserved. Data is deemed reliable but is not guaranteed accurate by the REALTORS® Association of Edmonton. Data was last updated December 7, 2025, 3:18 am. |
|
|
|
|
The data included on this website is deemed to be reliable, but is not guaranteed to be accurate by the REALTORS® Association of Edmonton.
MLS®, Multiple Listing Service®, and the associated logos are all registered certification marks owned by CREA and are used to identify real estate services provided by brokers and salespersons who are members of CREA. The trademarks REALTOR®, REALTORS® and the REALTOR® logo are controlled by The Canadian Real Estate Association (CREA) and identify real estate professionals who are members of CREA. Used under license.
|